A Turnkey Harlem Brownstone with Flexibility and Light

Located on one of the most beautiful, tree-lined blocks in Harlem, 103 West 122nd Street is a fully gut-renovated, 20'-wide, three-family townhouse offering a rare combination of timeless character and contemporary design. Whether you're seeking a strong investment to add to your portfolio, a live-in income property, or a future single-family conversion, this home offers versatility and style in equal measure.

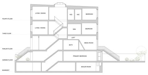
Each of the three perfectly-appointed residences in this approximately 4,220 SF townhouse offer a thoughtfully designed two/flex three-bedroom apartment with high ceilings-some up to 12'-and generous proportions. Open chef kitchens flow into gracious living and dining areas, while spa-like bathrooms, central AC and in-unit washer/dryers, as well as ample closets and storage, and carefully restored original details add convenience, comfort and character throughout. With both northern and southern exposures, every space is filled with beautiful and bright natural light throughout the day. The garden-level unit includes exclusive access to a spacious, private backyard and deck-a serene, 770 SF retreat perfect for outdoor dining, gardening, or a quiet escape in the heart of the city.

103 West 122nd Street is currently operating as a strong, turnkey investment property, with the added flexibility to suit a variety of future uses. A new owner could choose to live in one of the spacious units while renting out the others, creating a convenient live-in investment scenario. Alternatively, the home offers the potential to be converted into a two- or single-family residence for those seeking more space. Presently, the property is being managed by Rove Travel, who oversees both maintenance and short-term rental operations for the owner. Their services include guest coordination, marketing, and day-to-day logistics, providing a streamlined option for owners looking to generate rental income without the need for hands-on involvement.

Located just around the corner from Lenox Avenue-once referred to as Harlem's Heartbeat by Langston Hughes-and one block from Marcus Garvey Park, as well as in close proximity to both Morningside and Central Parks, 103 West 122nd Street is perfectly situated amongst the lush green spaces of this celebrated neighborhood, as well as its vibrant city life. You'll find local favorites for dining-like the famed soul food staple, Sylvia's, and award-winning Marcus Samuelsson's Red Rooster-nearby, as well as a Whole Foods, caf s, and local retail shops all within a few short blocks away. Commuting throughout the city and beyond is made easy with very close access to public transportation via the 2/3 and A/B/C/D subway lines.

A blend of function, beauty, and potential, 103 West 122nd Street offers a truly unique opportunity to own a piece of Harlem's storied past, refreshed for modern living.

Property Details of 103 W 122nd Street

Property Details

Interior Features

Map Location

Listed by Douglas Elliman Real Estate / Dustin V Crouse

This information is not verified for authenticity or accuracy and is not guaranteed and may not reflect all real estate activity in the market. ©2025 The Real Estate Board of New York, Inc., All rights reserved. RLS Data display by Christie's International Real Estate Group.

Hi there! How can we help you?

Contact us using the form below or give us a call.

Send Us A Message:

I agree to receive marketing and customer service calls and text messages from Christie's International Real Estate Group. To opt out, you can reply 'stop' at any time or click the unsubscribe link in the emails. Consent is not a condition of purchase. Msg/data rates may apply. Msg frequency varies. Privacy Policy.

Do not fill in this field:

This site is protected by reCAPTCHA and the Google Privacy Policy and Terms of Service apply.