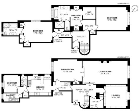
Newly renovated, glamorous duplex at Millan House. A foyer with a sweeping curved staircase provides the point of arrival for this elegant apartment. A step-down living room is entered through an archway, and has a wood burning fireplace, ten foot ceilings, and original casement windows, with sunny southern exposure over the roof of the landmarked Park Avenue Armory. A gorgeously pine-paneled library is adjoining, an ideal spot for cozy evenings or intimate gatherings. There is a huge cloak and powder room with a mahogany and marble vanity. A large and gracious formal dining room with parquet de Versailles floors and china closet faces north to Millan House's famed garden. All of the doors are figured mahogany with custom brass hardware. Beyond the dining room is a pantry with marble counters, ample storage, an under counter subzero wine fridge, two SubZero refrigerator drawers, and a sink and a bar. The pantry leads to a gourmet eat-in kitchen with a SubZero refrigerator, Miele dishwasher and brand new six-burner Bertazzoni vented chef's range. In the rear of the apartment is a full bath, a large and private guest bedroom and a wonderful laundry room with tons of storage. Ascending the staircase one arrives on the upstairs floor, also accessed by the passenger elevator. A large primary bedroom suite has a south-facing bedroom with lovely views over the Armory and the midtown skyline. The middle bedroom has been artfully transformed into a jaw-dropping dressing room with elegant mahogany built ins worthy of Saville Row. Beyond is a bathroom that transports one to the most elegant of London hotels, with a free-standing soaking tub, a large limestone shower with rainfall head, a separate water closet, a marble and mahogany vanity, and custom mahogany moldings and millwork throughout. A hallway leads to a very private and spacious guest suite, with a custom marble bathroom, eastern exposure over the garden, and ample closet space. The apartment is fully centrally air conditioned.

Built by John D. Rockefeller in 1931, Millan House consists of two separate buildings connected by a two-level Italianate interior private garden courtyard, with a wonderful fountain and seating areas. Designed by architect Andrew J. Thomas with 57 apartments, the buildings have Romanesque details such as carved animal capitals and arched loggias. Pied-a-terres and pets are welcome. 3% flip tax by purchaser. Special assessment for Local Law 11 through 7/25 of $1897 a month.

Property Details of 115 E 67th Street, Unit 7/8D

Property Details

Interior Features

Map Location

Listed by Brown Harris Stevens Residential Sales LLC / Amanda S Brainerd

This information is not verified for authenticity or accuracy and is not guaranteed and may not reflect all real estate activity in the market. ©2025 The Real Estate Board of New York, Inc., All rights reserved. RLS Data display by Christie's International Real Estate Group.

Hi there! How can we help you?

Contact us using the form below or give us a call.

Send Us A Message:

I agree to receive marketing and customer service calls and text messages from Christie's International Real Estate Group. To opt out, you can reply 'stop' at any time or click the unsubscribe link in the emails. Consent is not a condition of purchase. Msg/data rates may apply. Msg frequency varies. Privacy Policy.

Do not fill in this field:

This site is protected by reCAPTCHA and the Google Privacy Policy and Terms of Service apply.