Listing Tools (detailViewNewGen)

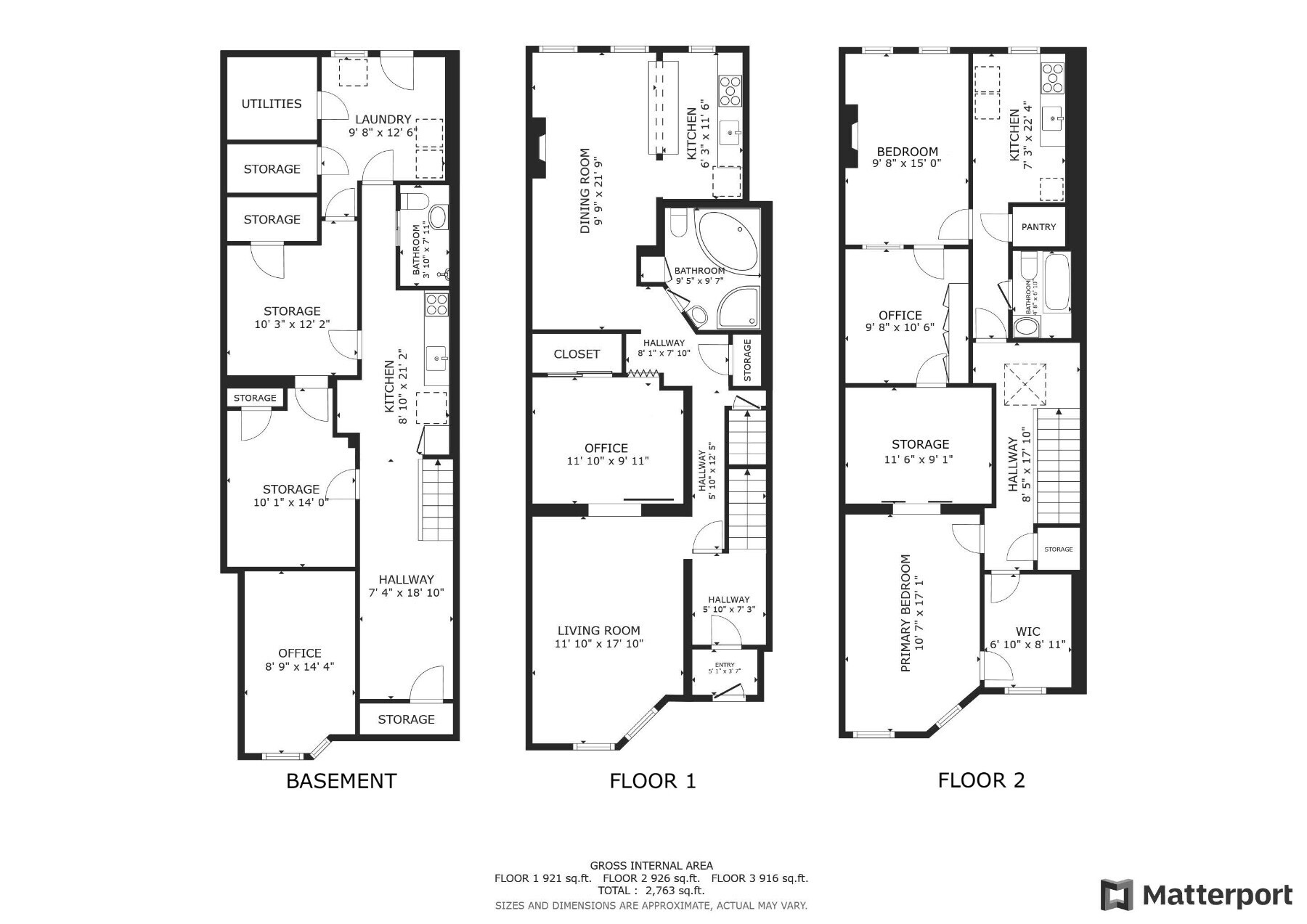
If we could describe this townhome in the heart of Crown Heights in one word, wed say: opportunity. An opportunity to transform it into an income-producing investment with two units. An opportunity to create a stunning single-family home that is waiting for your personal touch. Or make it both: an owners duplex with a rental unit to help defray costs. Any which way you look at it, this spacious townhome and lot is an unpolished gem begging to have its brilliance brought to the fore. With two stories, a basement, and a large backyard, this existing property has the potential to become an amazing home! All it will take is vision, a contractor/architect, and the right offer. PLUS, for the developers out there, you may be able to add another floor due to unused air rights. The current footprint of the townhouse is 19 ft x 52 ft; the lot is 19 ft x 90 ft. As currently configured, there is a kitchen and bathroom on every floor (including the basement), and two bedrooms sit on the top floor. With these bones, theres plenty of space to create your dream home. The backyard of this property is a standout feature, providing ample space for outdoor living and entertaining. The backyard allows for various opportunities to create a private oasis, including room for a garden, outdoor furniture, or even a jacuzzi! Those perfect New York City summer nights will be even more magical as you enjoy them with family and friends in your new private backyard - deck included! Location is everything, and this property sits in a prime lot across from St. Johns Park, while also sitting between three subway lines across two stations: the A, C lines and the 2, 3, 4, 5 lines. This vibrant neighborhood is rapidly growing in popularity and is becoming one of the most sought-after areas in Brooklyn. Recently named by the New York Times as one of the most trending neighborhoods for 2025, youll be close to some of the citys best restaurants, cafes, and bars, as well as beautiful parks and cultural attractions. Dont regret missing the opportunity to turn this property into something exceptional. Schedule a showing today! The bottom two floors will be delivered vacant at closing. There is a non-stabilized tenant on the top-floor through 12/2025.

Property Details of 141 Schenectady Avenue

Property Details

Interior Features

Map Location

Listed by Keller Williams NYC / Abby Stehula

Listing Sold by Keller Williams NYC Abby Stehula

This information is not verified for authenticity or accuracy and is not guaranteed and may not reflect all real estate activity in the market. ©2026 The Real Estate Board of New York, Inc., All rights reserved. RLS Data display by Christie's International Real Estate Group.

Hi there! How can we help you?

Contact us using the form below or give us a call.

Send Us A Message:

I agree to receive marketing and customer service calls and text messages from Christie's International Real Estate Group. To opt out, you can reply 'stop' at any time or click the unsubscribe link in the emails. Consent is not a condition of purchase. Msg/data rates may apply. Msg frequency varies. Privacy Policy.

Do not fill in this field:

This site is protected by reCAPTCHA and the Google Privacy Policy and Terms of Service apply.