Rare Opportunity on Atlantic Avenue: A 4-Story Gem with Endless Possibilities!
Seize this grand investment opportunity:
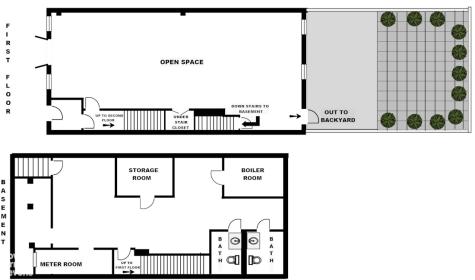
Property class three family with one store or office (S3)
Historic district Boerum Hill Extension
Building dimensions 22x52ft
Lock dimensions 22.42ftX80ft
Over 3000 ft. of unused space available
All dimensions per PROPERTY SHARK

Opportunity in one of the most vibrant and sought-after locations in the city! Situated on iconic Atlantic Avenue, this four-story building is delivered vacant, offering a blank canvas to create your dream property. Whether you're a savvy developer, an ambitious investor, or an owner-occupant with a vision, this property is your chance to design a legacy.

Key Features:
Two spacious bedrooms per floor-perfect for rentals, a multi-family setup, or a luxurious single-family conversion.
Full basement for additional storage, workspace, or creative possibilities.

Expansive backyard-a rare find in this prime urban location, ideal for entertaining, gardening, or outdoor retreats.
Room to build up-unlock even more potential with added floors, subject to zoning approval.

Prime Location:
Nestled in a stellar neighborhood filled with upscale artisan shops, trendy restaurants, and cultural hotspots.
Close to all major transportation hubs for unmatched convenience.
A short stroll to shopping, parks, and everything you need for city living at its finest.

Potential Galore:
This property is perfect for renovators with a vision! Reimagine the space to suit your needs-create a stunning multi-family residence, establish your own store on the ground floor, or develop it into a lucrative mixed-use building.

Why You'll Love It:
Atlantic Avenue is a hub of activity and charm, where modern living meets historic appeal. This is your chance to be part of a thriving community and join the ranks of the area's exciting growth and transformation.

Don't Miss Out!
Properties like this don't come around often. Whether you're dreaming of a home, business, or investment, this versatile property has it all.
Act now to secure your future! Contact me today for more details and a private showing.

Property Details of 379 Atlantic Avenue

Property Details

Interior Features

Other Details

Map Location

Listed by Brown Harris Stevens Brooklyn LLC / Helen Vanrhyn

This information is not verified for authenticity or accuracy and is not guaranteed and may not reflect all real estate activity in the market. ©2026 The Real Estate Board of New York, Inc., All rights reserved. RLS Data display by Christie's International Real Estate Group.

Hi there! How can we help you?

Contact us using the form below or give us a call.

Send Us A Message:

I agree to receive marketing and customer service calls and text messages from Christie's International Real Estate Group. To opt out, you can reply 'stop' at any time or click the unsubscribe link in the emails. Consent is not a condition of purchase. Msg/data rates may apply. Msg frequency varies. Privacy Policy.

Do not fill in this field:

This site is protected by reCAPTCHA and the Google Privacy Policy and Terms of Service apply.