Presenting to you is a huge single family home that can be used as a two family.Located in the heart of the Sheapshed Bay section of Brooklyn. This home is in close proximity to public transportation, schools, park, cafe, shopping and much more.

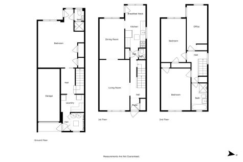
This property offers you a three bedroom duplex with a 1.5 bathroom on the top two floors. Also, it features a formal living room, formal dining room, eat-in-kitchen, wood floors, vaulted ceilings, private front porch, private yard, driveway and a 1 car garage. The ground floor offers a living space, bedroom, full bathroom, kitchen area, private entrance and more.

FINANCING IS AVAILABLE!

EASY ACCESS TO SHOW!





Property Details of 4428 Bedford Avenue

Property Details

Interior Features

Map Location

Listed by Keller Williams NYC / Christopher Webb

This information is not verified for authenticity or accuracy and is not guaranteed and may not reflect all real estate activity in the market. ©2025 The Real Estate Board of New York, Inc., All rights reserved. RLS Data display by Christie's International Real Estate Group.

Hi there! How can we help you?

Contact us using the form below or give us a call.

Send Us A Message:

I agree to receive marketing and customer service calls and text messages from Christie's International Real Estate Group. To opt out, you can reply 'stop' at any time or click the unsubscribe link in the emails. Consent is not a condition of purchase. Msg/data rates may apply. Msg frequency varies. Privacy Policy.

Do not fill in this field:

This site is protected by reCAPTCHA and the Google Privacy Policy and Terms of Service apply.