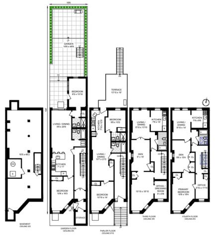
Looking for a blank slate on which to execute your investment opportunity objectives? Look no further. 521 Decatur St is the perfect investment opportunity. A full gut renovation has just been completed on the ground floor and parlor levels. Each floor consists of expansive, modern, luxury 2-bedroom, 2-bath units. Each unit features a modern kitchen with dishwasher, stone countertops with ample prep and cooking space, stainless steel sinks, ranges and plentiful cabinet storage. Modern conveniences such as split unit air-conditioning are in every room. The bathrooms are outfitted with the modern fixtures and designed to accommodate the tastes of today's most demanding tenants. Best of all, each unit has its own, individually accessible outdoor space - a fantastic personal getaway oasis replete with slate ground covering and unique outdoor living space that 21st century tenants require. As of October 31st the building will be completely vacant, primed for the investor interested in leveraging immediate income opportunities. The 3 and 4th floor units are floor-through apartments with ample living space and loads of "light-and-air." In today's highly competitive rental environment of increased competition for quality units that can command higher tier income objectives, 521 Decatur Street is the rare find with the ability to exceed those objectives.

521 Decatur Street is also located on a beautiful tree-lined block full of gorgeous historic homes, close to the C Train at Ralph Avenue and J & Z Train at Chauncey Street along with a list of local bars and restaurants such as Chez Oskar, Le Antagonist, Saraghina, Bar Lunatica and host of others conveniently located in Bedford Stuyvesant.

Property Details of 521 Decatur Street, Unit NA

Property Details

Interior Features

Map Location

Listed by Brown Harris Stevens Brooklyn LLC / Isaiah Ajala

This information is not verified for authenticity or accuracy and is not guaranteed and may not reflect all real estate activity in the market. ©2026 The Real Estate Board of New York, Inc., All rights reserved. RLS Data display by Christie's International Real Estate Group.

Hi there! How can we help you?

Contact us using the form below or give us a call.

Send Us A Message:

I agree to receive marketing and customer service calls and text messages from Christie's International Real Estate Group. To opt out, you can reply 'stop' at any time or click the unsubscribe link in the emails. Consent is not a condition of purchase. Msg/data rates may apply. Msg frequency varies. Privacy Policy.

Do not fill in this field:

This site is protected by reCAPTCHA and the Google Privacy Policy and Terms of Service apply.